Gestaltungskonzepte für Privatgärten

Der erste Schritt zu Ihrem Traumgarten

zurück

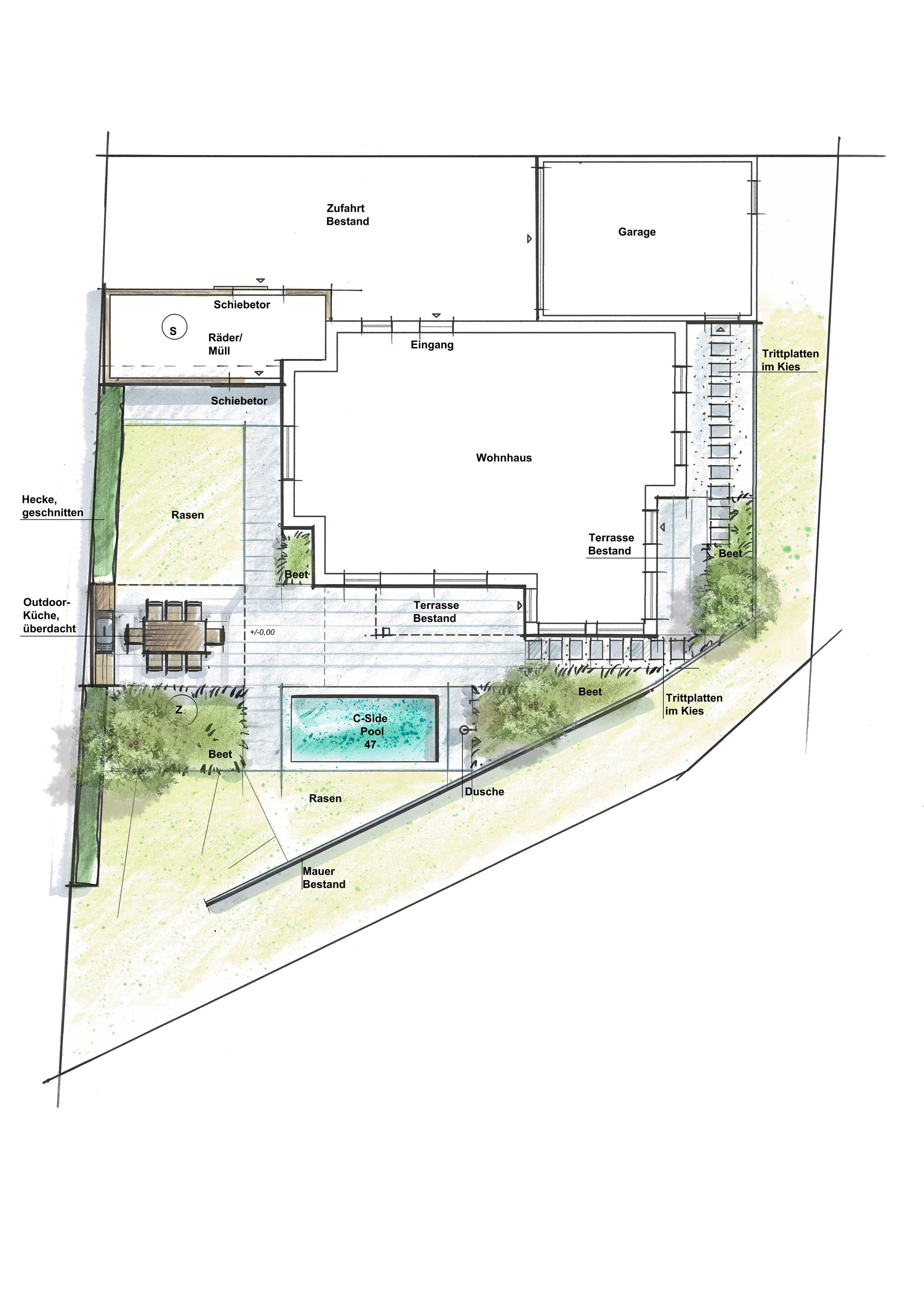
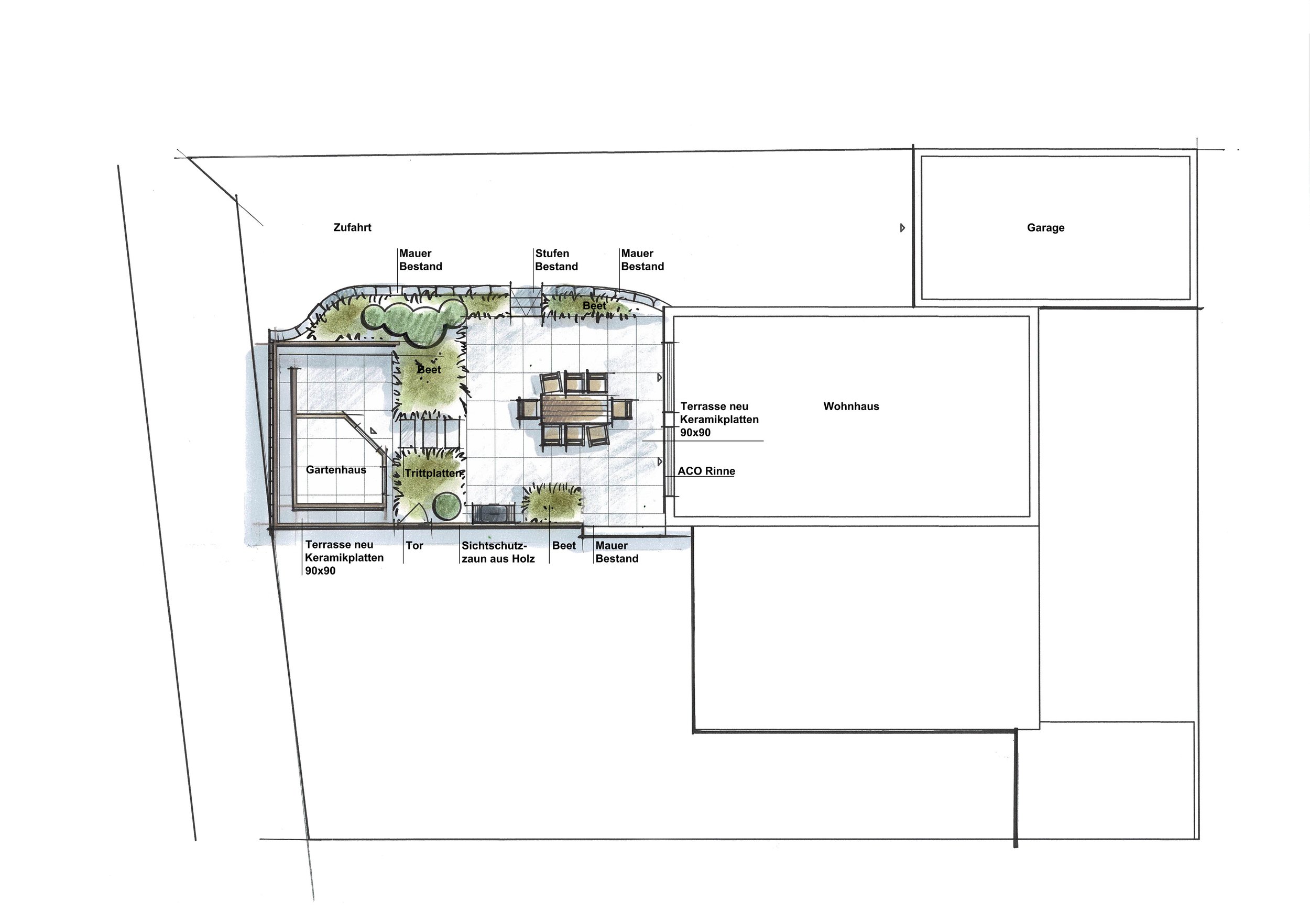
Die Basis jeden Anfangs ist ein gutes Konzept

Bei Wunsch Garten&Landschaftsbau wissen wir, dass ein schöner Garten kein Zufall ist – er ist das Ergebnis einer sorgfältigen Planung und eines gut durchdachten Konzepts. Oft wird die Bedeutung einer professionellen Gartenplanung unterschätzt, doch sie ist der Schlüssel zu einem harmonischen, funktionalen und pflegeleichten Außenbereich, der perfekt zu Ihren individuellen Wünschen passt.
 

Von der Planung bis zur Finalisierung stehen wir Ihnen mit Rat zur Seite!